相控式自动跟踪消弧补偿成套装置
一、产品介绍
ZGML-KL相控式自动跟踪消弧线圈及选线成套装置具有输出补偿容量能平滑变动,并自动跟踪测量电容电流,在单相接地时,则应立即动作和充分补偿工频接地电流,促使电弧迅速熄灭。该设备安装于6-66kV电网中性点。在电网发生接地故障时,该设备自动调整电感值,将接地电流控制在允许范围内,使接地点不产生电弧,避免对人身设备造成伤害,同时可快速选线,识别出故障线路方便检修,提高了电网供电可靠性和安全性。
在系统正常运行时,消弧线圈处于空载状态,呈容性,完全消除了零序网路的串联谐振现象,电抗器回路无需串联电阻。控制装置实时跟踪电容电流的变化,随时刷新测量结果,并用大屏幕LCD液晶显示器显示。对各种瞬时性单相接地故障具有较佳的快速补偿效果而确保能消除,对非瞬时性单相接地故障能快速判断故障线路并跳闸。
二、工作原理
相控消弧线圈结构原理如下图所示,工作时,消弧线圈低压控制绕组(L)处于晶闸管控制的短路工作状态,阻抗为低压控制绕组与高压绕组(H)耦合形成的短路阻抗,通过绕组空间位置的特殊设置,提高线圈间的短路阻抗,短路阻抗电压高达100%,通过调节可控硅导通角调节控制绕组的短路状态,从而可以调节阻抗大小达到调节消弧线圈输出电流的目的。同时,为了减少因电力电子器件的开关作用带来的谐波影响,设置了滤波绕组(F),合理配置滤波器。该产品具有无级随调,快速、准确、稳定的特性,是一种新型高效快速高短路阻抗变压器式可控电抗器。
相控消弧线圈结构原理示意图
三、产品特点
1、规格齐全,能满足用户对6kV~35kV的各种要求。
2、调节范围宽,可达0-100%额定电流。
3、无级连续可调,接地残流小。
4、二次低压调节,安全性好,可靠性高。
5、采用在线实时测量算法,可快速、准确、直观、完整地计算,并显示电网的有关参数,根据实时测量值自动调整消弧线圈的补偿输出,使其随时运行在最佳工作状态。
6、消弧与选线有机结合,采用基波幅值法、有功功率法、残流增量法、并联中电阻等算法的多判据选线,自动适应不同的系统状态,故障选线准确率显著提高。
7、相控消弧线圈接入系统后不会增大系统的位移电压,特别适用于系统不平衡比较严重的变电站。
四、技术指标
1、电容电流测量误差:不大于2%
2、调谐方式:随调
3、选线方法:基波幅值法/有功功率法/残流增量法/中电阻选线
4、控制消弧线圈数量:ZGML-KL 1台或2台
5、选线路数/母线数:48路/1段或2段
6、跳闸功能:48路(需加装跳闸控制箱)
7、报警输出:装置故障报警接点1对、外部故障报警接点1对、系统接地报警接点1对、电源消失报警接点1对
8、输出接点容量:DC220V/0.2A
9、工作电源:直流220V/110V,50W、交流220V,50Hz,50VA
10、接地信息记忆次数:600次
11、串行通讯接口:RS-485/422/232
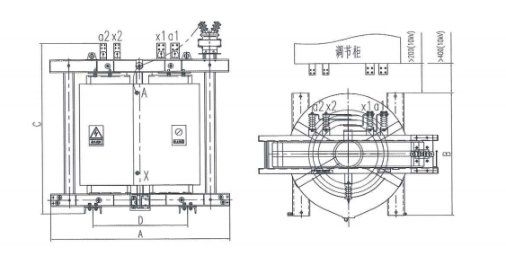
五、消弧线圈产品规格及外形尺寸
消弧线圈外形图如下:
干式消弧线圈外形图
油浸式消弧线圈外形图
户内相控消弧线圈调节柜外形图
户外相控消弧线圈调节柜外形图
表1:部分6kV〜35kV相控消弧线圈参考数据

